Skip to content
info@mrespares.com.au
Phone:
+61 2 9600 7444
Register
Login
Shop Parts
Service Tools
Cart
info@mrespares.com.au
Phone:
+61 2 9600 7444
Register
Login
Shop Parts
Service Tools
Cart
Home
About
About MRE Spare Parts
Ordering Information
Terms of Trade
Privacy Policy
Delivery Policy
Returns
Feedback
Faq
Contact
Home
>
FDC400KXZRE1/1 CONTROL AND PARTS SET
PRINT
FDC400KXZRE1/1 CONTROL AND PARTS SET
FDC400KXZRE1/1 CONTROL AND PARTS SET
Parts List
Key:
Instock.
Nilstock.
Contact MRE.
Check the parts position number [ ] matching with the drawing.
Login
to view prices.
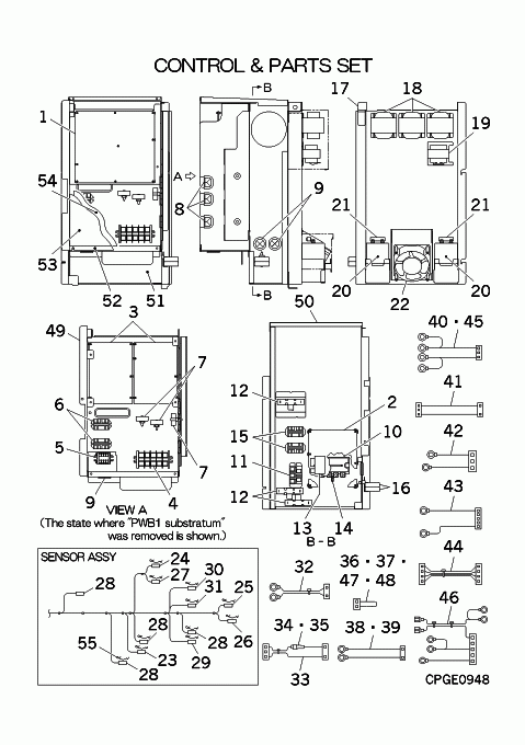
[1]
In Stock
PCB505A202WA
PWB ASSY (CONTROL)
[1-51]
Contact
PCB501A274FD
CONTROL UNIT
Contact
Notes:
NOT AVAILABLE
[2]
In Stock
PCB505A196AB
PWB ASSY (INV)
Show Image
[3]
Out of Stock
PCB505A268AB
PWB ASSY (NOISE.FILTER)
Notes:
PWB3 - Noise Filter PCB
[4]
In Stock
SSA561B712A
BLOCK TERMINAL
Show Image
[5]
In Stock
SSA561B693W
BLOCK,TERMI
Show Image
[6]
In Stock
SSA521A715A
RELAY
Notes:
52X1,52X2 - 200-240VAC ***SOLD INDIVIDUALLY***
[7]
In Stock
SSA552D081
FILTER,NOISE
[8]
Contact
SSA947B017
GROMMET
Contact
[9]
In Stock
S751W30X
GROMMET V14
Notes:
***SOLD INDIVIDUALLY***
Show Image
[10]
In Stock
PCB008A213D
TRANSISTOR(POWER)
Show Image
[11]
In Stock
PCB008A212B
DIODE(MODULE)
Show Image
[12]
Contact
SSA553A577
RESISTOR
Contact
[13]
In Stock
SSA552F694
CAPACITOR
Notes:
1250v 2.2uf. ***SOLD INDIVIDUALLY***
[14]
In Stock
SSA551A192W
SENSOR ASSY
[15]
In Stock
SSA521A727
RELAY
Notes:
52X1/ LENGTH 7CM
Show Image
[16]
Contact
SSA554D183C
KILLER,NOISE
Contact
[17]
Contact
PCB438A043A
DUCT ASSY
Contact
[18]
In Stock
SSA554B097A
REACTOR
Notes:
L1
Show Image
[19]
In Stock
SSA554B073
REACTOR
Show Image
[20]
Contact
SSA552F827
CAPACITOR
Contact
[21]
In Stock
SSA553A590
RESISTOR
[22]
In Stock
PCB511A006F
MOTOR ASSY,
[23]
In Stock
PSA551A015B
SENSOR ASSY
Notes:
THO-C1
Show Image
[24]
In Stock
PSA551A016S
SENSOR ASSY
Notes:
THO-H
Show Image
[25]
In Stock
PSA551A015J
SENSOR ASSY
Notes:
THO-R3/ LENGTH 22.5CM
[26]
In Stock
PSA551A015K
SENSOR ASSY
Notes:
THO-R4
Show Image
[27]
In Stock
PSA551A015V
SENSOR ASSY
Notes:
THO-SC
Show Image
[28]
Contact
PCB551A034V
SENSOR ASSY
Contact
Substitute:
PSA551A016V
[29]
In Stock
PSA551A016T
SENSOR ASSY
Notes:
THO-R2
Show Image
[30]
In Stock
PSA551A016R
SENSOR ASSY
Notes:
THO-R5
Show Image
[31]
In Stock
PSA551A015T
SENSOR ASSY
Notes:
THO-R6
Show Image
[32]
Contact
PCB504A308AF
WIRING ASSY
Contact
Notes:
TB2 A1,TB2 B1- PWB1 CNX1
[33-35]
In Stock
PCB504A373AG
WIRING ASSY
Show Image
[34]
In Stock
SSA564A149AG
FUSE(CURRENT)¯¿½
Notes:
F 4A¯¿½- 4 AMP FUSE - ****NOT MAIN FUSE****
Show Image
[35]
In Stock
RWC564B002
HOLDER,FUSE¯¿½
Show Image
[36]
Contact
PCB504A284BB
WIRING ASSY¯¿½
Contact
Notes:
PWB1 CNS1¯¿½
[37]
In Stock
PCB504A284BC
WIRING ASSY¯¿½
Notes:
PWB1 CNS2¯¿½
Show Image
[38]
Contact
PCB504A284BF
WIRING ASSY
Contact
Notes:
TB2 A1,TB2 B1- CNSL1
[39]
Contact
PCB504A284BG
WIRING ASSY¯¿½
Contact
Notes:
TB2 A2,TB2 B2- CNSL2¯¿½
[40]
Contact
PCB504A308AW
WIRING ASSY
Contact
Notes:
52X1-2 5,52X1-1 5,52X1-1 6,52X1-2 6- PWB1 CNM1
[41]
Contact
PCB504A308BA
WIRING ASSY
Contact
Notes:
PWB1 CNN8- FMC1
[42]
Contact
PCB504A373AH
WIRING ASSY
Contact
[43]
Contact
PCB504A331N
WIRING ASSY
Contact
[44]
In Stock
PCB504A403
WIRING ASSY
Show Image
[45]
Contact
PCB504A338L
WIRING ASSY
Contact
[46]
Contact
PCB504A373AJ
WIRING ASSY
Contact
[47]
Contact
PCB504A284AP
WIRING ASSY¯¿½
Contact
Notes:
PWB1 CNG1¯¿½
[48]
Contact
PCB504A284AR
WIRING ASSY¯¿½
Contact
Notes:
PWB1 CNG2¯¿½
[49]
Contact
PCB142A562A
BOX ASSY(MAIN)
Contact
[50]
Contact
PCB142A559A
BOX ASSY(INV)
Contact
[51]
Contact
PCB142A460
COVER
Contact
[52-54]
Contact
PCB142A463AF
COVER ASSY(CONTROL
Contact
[53]
Contact
PCB011G018AA
LABEL,WIRING
Contact
[54]
Contact
PCB011G018B
LABEL,WIRING
Contact
[55]
Out of Stock
RKJ941F001
SPRING LEAF
Substitute:
PSA941F001
Show Image
[56]
Contact
PSB011F264R
LABEL,MODEL NAME
Contact
FDC400KXZRE1/1 CONTROL AND PARTS SET quantity
Add to cart
SKU:
FDC400KXZRE1/1 CONTROL AND PARTS SET
Category:
Uncategorised
Home
About
About MRE Spare Parts
Ordering Information
Terms of Trade
Privacy Policy
Delivery Policy
Returns
Feedback
Faq
Contact
Login
0
0
Your Cart
Your cart is empty
Calculate Shipping